百科
→
装修知识
→
家装设计
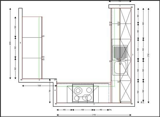
厨房设计案例(19):中档的U型橱柜设计
设计师介绍:
这是一个8平方米左右的厨房,橱柜设计采用U型布置方案,橱柜门板选用白色的高光门板;对于经常取用物品的烹饪区,设计了方便实用的抽屉式下柜;多功能的储物区,则选用了实惠的拉门柜体。长把手,虽然价格稍高些,但外观增加了现代感。
厨房设计案例:中档的U型橱柜设计
厨房设计案例:中档的U型橱柜设计
相关文章:
·
厨房设计案例(18):中档的L型橱柜设计
·
厨房设计案例(17):经济实用的开放式橱柜设...
·
厨房设计案例(15):简单实用的I型橱柜设计
·
厨房设计案例(16):便宜实用的I型橱柜设计
·
不同风格的卧室装修设计 让家与众不同(图)
·
厨房设计案例(14):狭长型橱柜设计
·
厨房设计案例(13):异型橱柜设计
·
厨房设计案例(12):不规则橱柜设计
·
厨房设计案例(11):岛型橱柜设计 清洗用餐在...
·
厨房设计案例(10):岛型橱柜设计 烹饪休闲在...
·
厨房设计案例(20):古典风格的L型橱柜设计
·
厨房设计案例(21):开放式古典风格U型橱柜设...
·
家居装修设计的美学原则
·
厨房设计案例(22):现代风格的U型橱柜设计
·
厨房设计案例(23):注重烹饪功能的L型橱柜设...
·
厨房设计案例(24):开放式厨房与客厅的结合
·
厨房设计案例(25):小型用餐区的橱柜设计
·
厨房设计案例(26):带用餐区的橱柜设计
·
厨房设计案例(27):开放式厨房橱柜设计
·
厨房设计案例(28):坡顶厨房的L型橱柜设计
·
小空间大作用,巧妙设计让飘窗“飘
·
书房装修设计——雅、序、明、静
·
取舍有“道” 家庭装修吊顶别入误
·
电视背景墙的装修设计及流行做法
·
小户型房屋装修布置与设计原则