百科
→
装修知识
→
家装设计
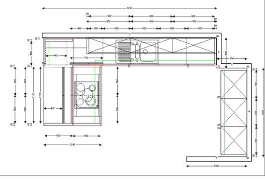
厨房设计案例(4):开放式厨房U型橱柜设计
◆设计师介绍:
这间厨房比较狭长,长近4米,宽却还不到2米;新婚夫妇对于厨房主要以美观及情调为主,因此设计了开放式的U型橱柜,一侧的吧台还可以吃简单的早餐;红色的橱柜面板,增添新婚的喜气。
◆业主点评:
新婚夫妇,年轻人都是不擅长烹饪的,但两人希望下厨房为心爱的人做早餐的愿望还是美好的。
厨房设计案例:开放式厨房U型橱柜设计
厨房设计案例:开放式厨房U型橱柜设计
相关文章:
·
厨房设计案例(3):L型橱柜设计
·
厨房设计案例(2):利用拐角空间的L型橱柜设...
·
厨房设计案例(1):L型橱柜设计
·
安全第一 儿童房的装修设计应注意三点
·
经济实用的简约厨房设计特色
·
儿童房的装修设计要诀(图)
·
家庭装修的设计原则
·
家居装修用色彩改变心情 红黄色调增强家居活...
·
5款现代的儿童房设计(图)
·
家庭装修的几种设计方法
·
厨房设计案例(5):开放式厨房U型橱柜设计
·
厨房设计案例(6):U型橱柜设计
·
厨房设计案例(7):简单但功能齐全的I型橱柜...
·
厨房设计案例(8):个性的I型橱柜设计
·
厨房设计案例(9):岛型橱柜设计 随意休闲在...
·
厨房设计案例(10):岛型橱柜设计 烹饪休闲在...
·
厨房设计案例(11):岛型橱柜设计 清洗用餐在...
·
厨房设计案例(12):不规则橱柜设计
·
厨房设计案例(13):异型橱柜设计
·
厨房设计案例(14):狭长型橱柜设计
·
小空间大作用,巧妙设计让飘窗“飘
·
书房装修设计——雅、序、明、静
·
取舍有“道” 家庭装修吊顶别入误
·
电视背景墙的装修设计及流行做法
·
小户型房屋装修布置与设计原则