百科
→
装修知识
→
家装设计
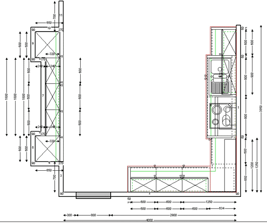
厨房设计案例(5):开放式厨房U型橱柜设计
◆设计师介绍:
这是一间别墅的开放式厨房,面积有15平方米左右;U型的橱柜,可以有充裕的储藏空间,同时也营造了温馨的进餐氛围;而中年的夫妇,不再适合选用太亮丽的颜色,为了不让色彩过于沉闷,橱柜门板选用了白色,搭配藤制的餐桌餐椅,全家团聚时,可以想象那情景有多温暖吧!
◆业主点评:
中年夫妻二人,周末成家的子女会来陪父母吃饭,因此一个温馨的用餐环境会很重要。
厨房设计案例:开放式厨房U型橱柜设计
厨房设计案例:开放式厨房U型橱柜设计
相关文章:
·
厨房设计案例(4):开放式厨房U型橱柜设计
·
厨房设计案例(3):L型橱柜设计
·
厨房设计案例(2):利用拐角空间的L型橱柜设...
·
厨房设计案例(1):L型橱柜设计
·
安全第一 儿童房的装修设计应注意三点
·
经济实用的简约厨房设计特色
·
儿童房的装修设计要诀(图)
·
家庭装修的设计原则
·
家居装修用色彩改变心情 红黄色调增强家居活...
·
5款现代的儿童房设计(图)
·
厨房设计案例(6):U型橱柜设计
·
厨房设计案例(7):简单但功能齐全的I型橱柜...
·
厨房设计案例(8):个性的I型橱柜设计
·
厨房设计案例(9):岛型橱柜设计 随意休闲在...
·
厨房设计案例(10):岛型橱柜设计 烹饪休闲在...
·
厨房设计案例(11):岛型橱柜设计 清洗用餐在...
·
厨房设计案例(12):不规则橱柜设计
·
厨房设计案例(13):异型橱柜设计
·
厨房设计案例(14):狭长型橱柜设计
·
不同风格的卧室装修设计 让家与众不同(图)
·
小空间大作用,巧妙设计让飘窗“飘
·
书房装修设计——雅、序、明、静
·
取舍有“道” 家庭装修吊顶别入误
·
电视背景墙的装修设计及流行做法
·
小户型房屋装修布置与设计原则