百科
→
装修知识
→
家装设计
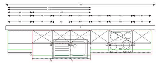
厨房设计案例(7):简单但功能齐全的I型橱柜设计
◆设计师介绍:
厨房的面积比较小,5平方米不到,业主不希望太拥挤,因此设计了简单但功能齐全的I型厨房,内置冰箱、清洗区、烹饪区的烤箱,所有功能一应俱全,正是“麻雀虽小,五脏俱全”,橱柜门板选用的也是价格较为实惠的门板。
◆业主点评:
三口之家,厨房较小,但老公的体型比较大,动作幅度也较大,因此希望厨房不要太拥挤。
厨房设计案例:简单但功能齐全的I型橱柜设计
厨房设计案例:简单但功能齐全的I型橱柜设计
相关文章:
·
厨房设计案例(6):U型橱柜设计
·
厨房设计案例(5):开放式厨房U型橱柜设计
·
厨房设计案例(4):开放式厨房U型橱柜设计
·
厨房设计案例(3):L型橱柜设计
·
厨房设计案例(2):利用拐角空间的L型橱柜设...
·
厨房设计案例(1):L型橱柜设计
·
安全第一 儿童房的装修设计应注意三点
·
经济实用的简约厨房设计特色
·
儿童房的装修设计要诀(图)
·
家庭装修的设计原则
·
厨房设计案例(8):个性的I型橱柜设计
·
厨房设计案例(9):岛型橱柜设计 随意休闲在...
·
厨房设计案例(10):岛型橱柜设计 烹饪休闲在...
·
厨房设计案例(11):岛型橱柜设计 清洗用餐在...
·
厨房设计案例(12):不规则橱柜设计
·
厨房设计案例(13):异型橱柜设计
·
厨房设计案例(14):狭长型橱柜设计
·
不同风格的卧室装修设计 让家与众不同(图)
·
厨房设计案例(16):便宜实用的I型橱柜设计
·
厨房设计案例(15):简单实用的I型橱柜设计
·
小空间大作用,巧妙设计让飘窗“飘
·
书房装修设计——雅、序、明、静
·
取舍有“道” 家庭装修吊顶别入误
·
电视背景墙的装修设计及流行做法
·
小户型房屋装修布置与设计原则